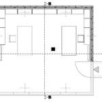
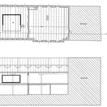
.25
.25 2831 scheiblingkirchen
einbau loftbox
planung 2006
nicht realisiert
fotos (c) architekturbureau
mehr fotos auf google-photos >>>
modell
pläne
startseite
projekte
team
events
kontakt
impressum
in bau
in planung
gebaut
nur geplant
.45 neustiftgasse 61, 1070
.49 senefeldergasse 35, 1100
.48 hegelgasse 15/1a, 1010
.35 wettbewerb S8
.34 stuwerstrasse 46, 1020
.30 haspingergasse 1-3, 1080
.26 einsiedelei, 3001
.25 scheiblingkirchen, 2831
.24a güterslohgasse 21, 1220
.08 hartmanngasse 12, 1050
.06 obere amtshausgasse 21, 1050
.01 wettbewerb_schule, 1220
zuklappen